物件ID:197946
情報公開日:2026年04月05日
情報更新日:2026年05月12日
立地
-
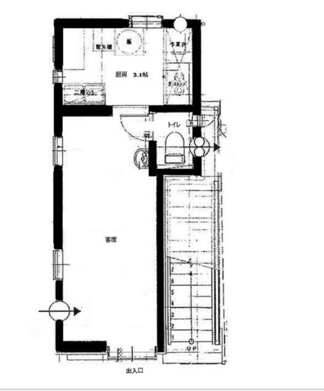
住所 東京都江東区亀戸六丁目60-2 建物名/所在階 101/1階 最寄駅 JR中央・総武線亀戸駅
徒歩1分近隣駅1 ー 近隣駅2 ー
費用/契約
-
造作価格 ー 賃料(坪単価) 250,000円(47,909円) 管理費/共益費(坪単価) ー(ー) 保証金/敷金 3ヶ月 / 0ヶ月 償却 1ヶ月 礼金 1ヶ月 更新料/再契約料 1ヶ月 その他費用 ー 仲介手数料 1ヶ月 その他手数料 ー 契約期間 2年 契約種別
用途
-
物件の現況 ー 可能用途 何業も可 坪数 5.22坪
- 備考



























