物件ID:196536
情報公開日:2026年03月25日
情報更新日:2026年03月25日
立地
-
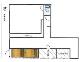
住所 東京都台東区浅草橋二丁目11-7 建物名/所在階 森口ビル/1階 最寄駅 つくばエクスプレス浅草駅
徒歩1分近隣駅1 ー 近隣駅2 ー
費用/契約
-
造作価格 ー 賃料(坪単価) 550,000円(53,140円) 管理費/共益費(坪単価) ー(ー) 保証金/敷金 10ヶ月 / ー 償却 3ヶ月 礼金 3ヶ月 更新料/再契約料 ご相談 その他費用 管理委託料:月額15,000円 仲介手数料 1ヶ月 その他手数料 ー 契約期間 6年 契約種別 普通賃貸借
用途
-
物件の現況 居酒屋 可能用途 何業も可 坪数 10.35坪
- 備考
- 営業時間制限:24時迄




















