物件ID:196401
情報公開日:2026年03月24日
情報更新日:2026年03月24日
立地
-
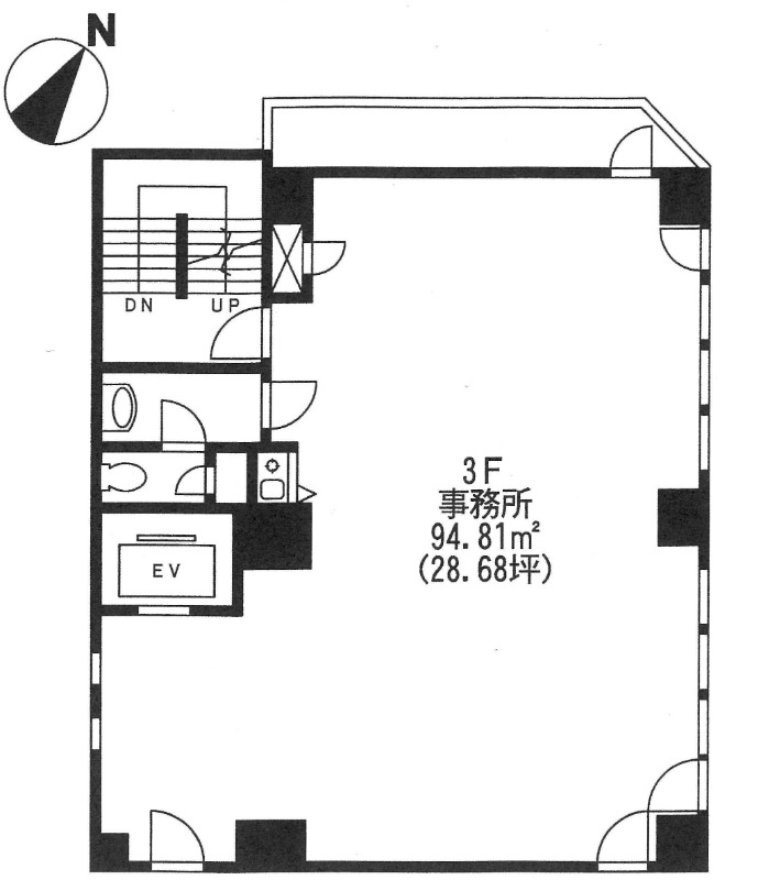
住所 東京都千代田区九段南三丁目7-2 建物名/所在階 九段みなみビル/3階 最寄駅 JR中央・総武線市ケ谷駅
徒歩8分近隣駅1 ー 近隣駅2 ー
費用/契約
-
造作価格 ー 賃料(坪単価) 401,500円(13,999円) 管理費/共益費(坪単価) 77,000円(2,684円) 保証金/敷金 8ヶ月 / ー 償却 2ヶ月 礼金 0ヶ月 更新料/再契約料 1ヶ月 その他費用 ー 仲介手数料 1ヶ月 その他手数料 ー 契約期間 2年 契約種別
用途
-
物件の現況 サービス(その他) 可能用途 指定あり 坪数 28.68坪
- 備考


















