物件ID:161736
情報公開日:2025年06月06日
情報更新日:2026年02月05日
立地
-
住所 東京都千代田区平河町一丁目2-2 建物名/所在階 吉田ビル 4F/4階 最寄駅 東京メトロ半蔵門線半蔵門駅
徒歩1分近隣駅1 東京メトロ有楽町線麹町駅
徒歩5分近隣駅2 東京メトロ有楽町線永田町駅
徒歩12分
費用/契約
-
造作価格 ー 賃料(坪単価) 338,030円(15,398円) 管理費/共益費(坪単価) 48,290円(2,199円) 保証金/敷金 8ヶ月 / ー 償却 2ヶ月 礼金 0ヶ月 更新料/再契約料 ー その他費用 ー 仲介手数料 1ヶ月 その他手数料 ー 契約期間 2年 契約種別
用途
-
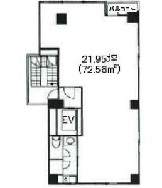
物件の現況 サービス(その他) 可能用途 指定あり 坪数 21.95坪
- 備考



















