物件ID:196222
情報公開日:2026年03月23日
情報更新日:2026年03月23日
立地
-
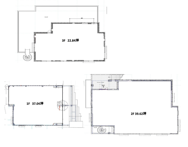
住所 東京都渋谷区神宮前四丁目19-3 建物名/所在階 CASA表参道/1~3階 最寄駅 東京メトロ銀座線表参道駅
徒歩3分近隣駅1 東京メトロ千代田線表参道駅
徒歩3分近隣駅2 東京メトロ半蔵門線表参道駅
徒歩3分
費用/契約
-
造作価格 ー 賃料(坪単価) 5,060,000円(50,854円) 管理費/共益費(坪単価) ー(ー) 保証金/敷金 10ヶ月 / 0ヶ月 償却 1ヶ月 礼金 0ヶ月 更新料/再契約料 1ヶ月 その他費用 ー 仲介手数料 1ヶ月 その他手数料 ー 契約期間 5年 契約種別 普通賃貸借
用途
-
物件の現況 ー 可能用途 指定あり 坪数 99.50坪
- 備考
- 1階〜3階の一括貸し。外装ご相談可能
表参道ヒルズの真裏。保証会社(4cs)・家財保険 貸主指定






















