物件ID:194748
情報公開日:2026年03月10日
情報更新日:2026年03月10日
立地
-
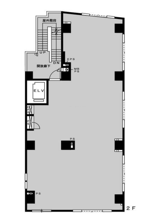
住所 東京都練馬区豊玉上二丁目15-10 建物名/所在階 スターフィールド桜台/2階 最寄駅 西武池袋線桜台駅
徒歩1分近隣駅1 ー 近隣駅2 ー
費用/契約
-
造作価格 ー 賃料(坪単価) 462,000円(11,187円) 管理費/共益費(坪単価) ー(ー) 保証金/敷金 ー / 6ヶ月 償却 1ヶ月 礼金 2ヶ月 更新料/再契約料 ー その他費用 ー 仲介手数料 1ヶ月 その他手数料 ー 契約期間 2年 契約種別
用途
-
物件の現況 ー 可能用途 ご相談 坪数 41.30坪
- 備考
- スケルトン渡し























