物件ID:180418
情報公開日:2025年11月11日
情報更新日:2026年04月27日
立地
-
住所 東京都練馬区桜台一丁目5-4 建物名/所在階 Sera.U 桜台駅前/1階 最寄駅 西武池袋線桜台駅
徒歩1分近隣駅1 西武池袋線練馬駅
徒歩8分近隣駅2 都営大江戸線練馬駅
徒歩9分
費用/契約
-
造作価格 ー 賃料(坪単価) 297,000円(19,946円) 管理費/共益費(坪単価) ー(ー) 保証金/敷金 ー / 3ヶ月 償却 ご相談 礼金 1ヶ月 更新料/再契約料 1ヶ月 その他費用 火災保険加入要 仲介手数料 1ヶ月 その他手数料 ー 契約期間 2年 契約種別
用途
-
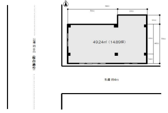
物件の現況 ー 可能用途 指定あり 坪数 14.89坪
- 備考
- 初期費用のクレジット決済が可能 2025年6月外装工事
解約予告6ヶ月前 1フロア1テナント 土日祝利用可
保証人不要 2025年7月オートロック・ゴミストッカー新設



















