物件ID:192831
情報公開日:2026年02月25日
情報更新日:2026年02月25日
立地
-
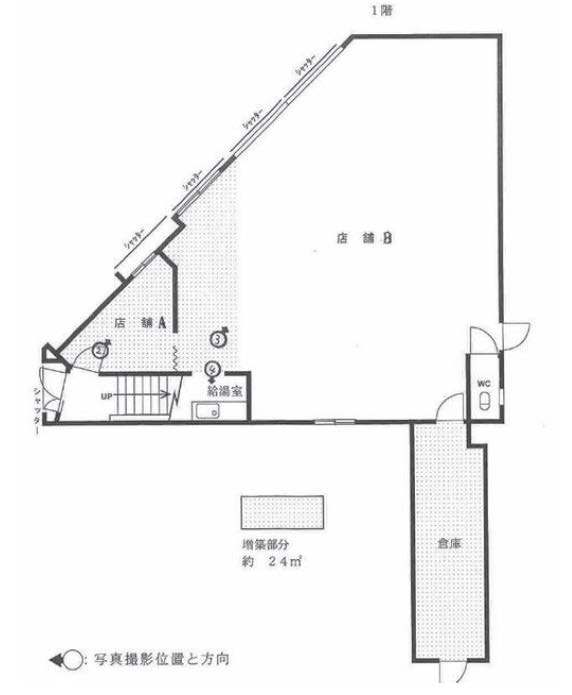
住所 東京都江戸川区中央四丁目20-19 建物名/所在階 伊東ビル/1階 最寄駅 JR中央・総武線新小岩駅
徒歩22分近隣駅1 ー 近隣駅2 ー
費用/契約
-
造作価格 ー 賃料(坪単価) 370,000円(12,127円) 管理費/共益費(坪単価) 5,000円(163円) 保証金/敷金 0ヶ月 / 6ヶ月 償却 2ヶ月 礼金 1ヶ月 更新料/再契約料 1ヶ月 その他費用 ー 仲介手数料 1ヶ月 その他手数料 ー 契約期間 3年 契約種別 普通賃貸借
用途
-
物件の現況 ー 可能用途 指定あり 坪数 30.51坪
- 備考



















