物件ID:192575
情報公開日:2026年02月23日
情報更新日:2026年02月23日
立地
-
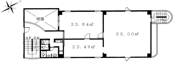
住所 東京都武蔵野市御殿山一丁目6-8 建物名/所在階 ムサシヤビル/2階 最寄駅 JR中央本線(東京~塩尻)吉祥寺駅
徒歩3分近隣駅1 ー 近隣駅2 ー
費用/契約
-
造作価格 ー 賃料(坪単価) 484,000円(14,243円) 管理費/共益費(坪単価) 55,000円(1,618円) 保証金/敷金 6ヶ月 / 0ヶ月 償却 20% 礼金 1ヶ月 更新料/再契約料 1ヶ月 その他費用 初回保証料:月額総賃料の100% 仲介手数料 1ヶ月 その他手数料 ー 契約期間 2年 契約種別
用途
-
物件の現況 サービス(その他) 可能用途 ご相談 坪数 33.98坪
- 備考



















