物件ID:192528
情報公開日:2026年02月22日
情報更新日:2026年02月22日
立地
-
住所 東京都町田市金井四丁目23-28 建物名/所在階 グリーンハイムいちかわ/1階 最寄駅 小田急線鶴川駅 近隣駅1 ー 近隣駅2 ー
費用/契約
-
造作価格 ー 賃料(坪単価) 300,000円(9,572円) 管理費/共益費(坪単価) 22,000円(702円) 保証金/敷金 5ヶ月 / ー 償却 20% 礼金 1ヶ月 更新料/再契約料 ー その他費用 駐車可能台数:5台(1台8,800円/月)要別途契約 仲介手数料 1ヶ月 その他手数料 ー 契約期間 3年 契約種別 普通賃貸借
用途
-
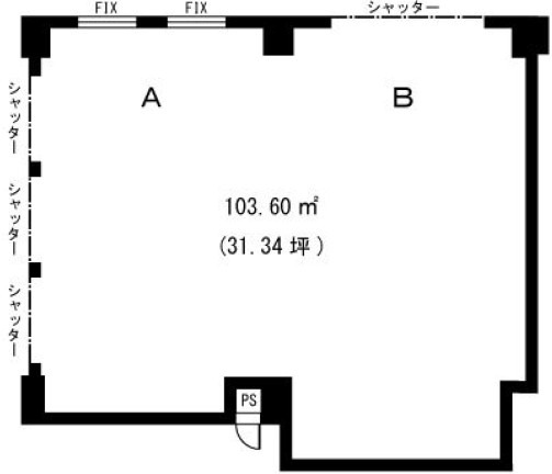
物件の現況 ー 可能用途 指定あり 坪数 31.34坪
- 備考
- 看板取付スペースあり/ シャッター付き
賃貸保証加入要 エポス 初回保証料:月額賃料100%
更新料:1年毎に14,000円




















