物件ID:192210
情報公開日:2026年02月19日
情報更新日:2026年02月19日
立地
-
住所 東京都渋谷区代々木二丁目9-2 建物名/所在階 久保ビル/1階 最寄駅 JR山手線新宿駅
徒歩4分近隣駅1 ー 近隣駅2 ー
費用/契約
-
造作価格 ー 賃料(坪単価) ご相談(0円) 管理費/共益費(坪単価) ご相談(ご相談) 保証金/敷金 ご相談 / ー 償却 0% 礼金 ご相談 更新料/再契約料 0ヶ月 その他費用 保証会社・火災保険加入要 仲介手数料 1ヶ月 その他手数料 ー 契約期間 5年 契約種別 普通賃貸借
用途
-
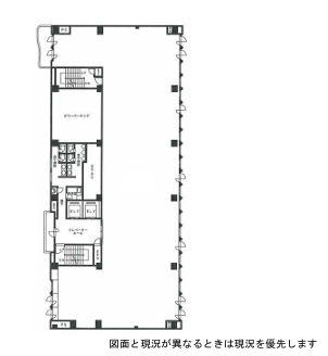
物件の現況 サービス(その他) 可能用途 指定あり 坪数 91.50坪
- 備考
- 空調:セントラル 天井高:基準階2550mm セキュリティ:有人
駐車場:有 EV:有



















