物件ID:191843
情報公開日:2026年02月16日
情報更新日:2026年02月16日
立地
-
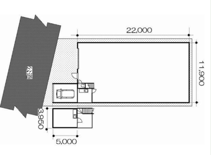
住所 東京都江戸川区南葛西四丁目1-2 建物名/所在階 南葛西4丁目 貸工場・倉庫/1階 最寄駅 JR京葉線葛西臨海公園駅
徒歩15分近隣駅1 ー 近隣駅2 ー
費用/契約
-
造作価格 ー 賃料(坪単価) 1,100,000円(12,898円) 管理費/共益費(坪単価) ー(ー) 保証金/敷金 0ヶ月 / 4ヶ月 償却 0% 礼金 2ヶ月 更新料/再契約料 ー その他費用 ー 仲介手数料 1ヶ月 その他手数料 ー 契約期間 3年 契約種別 普通賃貸借
用途
-
物件の現況 ー 可能用途 指定あり 坪数 85.28坪
- 備考
- ·天高9.5~11.4m·駐車スペース3台分あり
·環七沿いの希少物件·クレーン有(2.8t)
電灯+動力 駐車場


















