物件ID:191473
情報公開日:2026年02月13日
情報更新日:2026年02月13日
立地
-
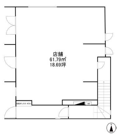
住所 東京都中野区沼袋二丁目32-8 建物名/所在階 髙木ビル/1階 最寄駅 西武新宿線沼袋駅
徒歩5分近隣駅1 ー 近隣駅2 ー
費用/契約
-
造作価格 ー 賃料(坪単価) 418,000円(22,363円) 管理費/共益費(坪単価) ー(ー) 保証金/敷金 6ヶ月 / 0ヶ月 償却 20% 礼金 2ヶ月 更新料/再契約料 ー その他費用 ー 仲介手数料 1ヶ月 その他手数料 ー 契約期間 3年 契約種別
用途
-
物件の現況 ー 可能用途 何業も可 坪数 18.69坪
- 備考
- 保証会社要加入要



















