物件ID:191352
情報公開日:2026年02月12日
情報更新日:2026年02月16日
立地
-
住所 東京都渋谷区渋谷三丁目8-11 建物名/所在階 渋谷三丁目TRビル 2階 /2階 最寄駅 東急東横線渋谷駅
徒歩2分近隣駅1 東京メトロ半蔵門線渋谷駅
徒歩2分近隣駅2 ー
費用/契約
-
造作価格 ー 賃料(坪単価) 780,450円(36,307円) 管理費/共益費(坪単価) 70,950円(3,300円) 保証金/敷金 ー / 10ヶ月 償却 1ヶ月 礼金 1ヶ月 更新料/再契約料 ー その他費用 指定保証会社:要加入 指定火災保険:要加入 仲介手数料 1ヶ月 その他手数料 ー 契約期間 ー 契約種別 普通賃貸借
用途
-
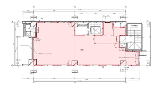
物件の現況 サービス(その他) 可能用途 指定あり 坪数 21.50坪
- 備考
- 天井高:3,000mm 電灯:75A 動力:50A
給水:20mm 排水:100mm
バッティング:歯医者,英会話教室,美容室




















