物件ID:191252
情報公開日:2026年02月11日
情報更新日:2026年02月11日
立地
-
住所 東京都文京区湯島一丁目1-12 建物名/所在階 NTビル/1階 最寄駅 JR中央線(快速)御茶ノ水駅
徒歩5分近隣駅1 ー 近隣駅2 ー
費用/契約
-
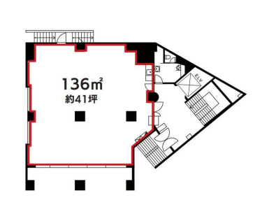
造作価格 ー 賃料(坪単価) 495,000円(12,032円) 管理費/共益費(坪単価) 55,000円(1,336円) 保証金/敷金 1,980,000 / 0ヶ月 償却 ご相談 礼金 1ヶ月 更新料/再契約料 ご相談 その他費用 初回保証料:月額総賃料の100% 仲介手数料 1ヶ月 その他手数料 ー 契約期間 3年 契約種別 普通賃貸借
用途
-
物件の現況 ー 可能用途 ご相談 坪数 41.14坪
- 備考



















