物件ID:190940
情報公開日:2026年02月09日
情報更新日:2026年02月10日
立地
-
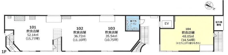
住所 東京都港区六本木三丁目8-2 建物名/所在階 WHARF六本木 104号室/1階 最寄駅 東京メトロ日比谷線六本木駅
徒歩3分近隣駅1 ー 近隣駅2 ー
費用/契約
-
造作価格 ー 賃料(坪単価) 799,700円(55,000円) 管理費/共益費(坪単価) ー(ー) 保証金/敷金 ー / 0ヶ月 償却 0% 礼金 0ヶ月 更新料/再契約料 1ヶ月 その他費用 火災保険・保証会社加入要/保証会社への預託金が必要な場合有 仲介手数料 1ヶ月 その他手数料 ー 契約期間 3年 契約種別
用途
-
物件の現況 ー 可能用途 指定あり 坪数 14.54坪
- 備考
- 公営水道 公共下水 都市ガス スケルトン渡し
3年未満の解約の場合、違約金あり





















