物件ID:190321
情報公開日:2026年02月04日
情報更新日:2026年02月04日
立地
-
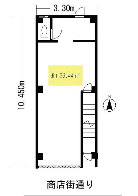
住所 東京都足立区千住旭町34-17 建物名/所在階 学園通りビル(仮)/1階 最寄駅 東武伊勢崎線北千住駅
徒歩3分近隣駅1 東京メトロ日比谷線北千住駅
徒歩3分近隣駅2 ー
費用/契約
-
造作価格 ー 賃料(坪単価) 350,000円(34,600円) 管理費/共益費(坪単価) ー(ー) 保証金/敷金 0ヶ月 / 3ヶ月 償却 0% 礼金 3ヶ月 更新料/再契約料 2ヶ月 その他費用 ー 仲介手数料 1ヶ月 その他手数料 ー 契約期間 3年 契約種別
用途
-
物件の現況 ー 可能用途 指定あり 坪数 10.12坪
- 備考



















