物件ID:190301
情報公開日:2026年02月04日
情報更新日:2026年03月24日
立地
-
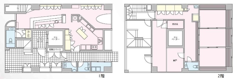
住所 東京都台東区駒形二丁目1-3 建物名/所在階 フルエント蔵前/1~2階 最寄駅 都営大江戸線蔵前駅
徒歩1分近隣駅1 都営浅草線蔵前駅
徒歩4分近隣駅2 東京メトロ銀座線浅草駅
徒歩5分
費用/契約
-
造作価格 ー 賃料(坪単価) 880,000円(20,307円) 管理費/共益費(坪単価) ー(ー) 保証金/敷金 6ヶ月 / 0ヶ月 償却 ご相談 礼金 1ヶ月 更新料/再契約料 1ヶ月 その他費用 ー 仲介手数料 1ヶ月 その他手数料 ー 契約期間 3年 契約種別
用途
-
物件の現況 寿司・和食 可能用途 指定あり 坪数 43.33坪
- 備考
- 造作譲渡は相談可
1階:59.8㎡ 2階:83.45㎡
内見は基本15~17時まで限定で1週間前までに予約



























