物件ID:189962
情報公開日:2026年02月02日
情報更新日:2026年02月02日
立地
-
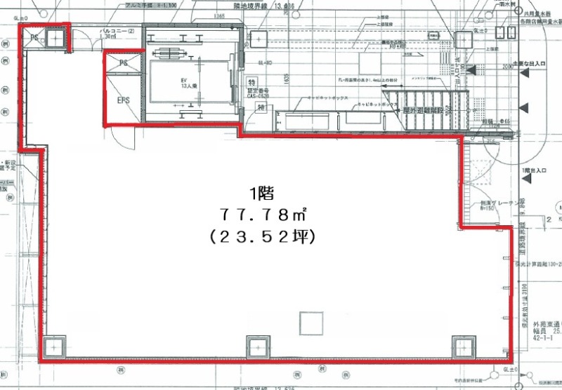
住所 東京都港区六本木七丁目14-5 建物名/所在階 六本木大和ビル/1階 最寄駅 東京メトロ日比谷線六本木駅
徒歩1分近隣駅1 ー 近隣駅2 ー
費用/契約
-
造作価格 ー 賃料(坪単価) 2,328,480円(99,000円) 管理費/共益費(坪単価) ー(ー) 保証金/敷金 10ヶ月 / 0ヶ月 償却 1ヶ月 礼金 1ヶ月 更新料/再契約料 1ヶ月 その他費用 看板掲載料月額(1階案内板·袖看板):20,000円(税別) 仲介手数料 1ヶ月 その他手数料 ー 契約期間 8年 契約種別 普通賃貸借
用途
-
物件の現況 ー 可能用途 ご相談 坪数 23.52坪
- 備考
- 飲食店舗:業態相談、保険会社加入必須、再契約料:賃料の1ヵ月分
ゴミ処理料:実費別途負担
※風俗営業、ガールズバー、ラウンジ不可



















