物件ID:189766
情報公開日:2026年02月01日
情報更新日:2026年04月24日
立地
-
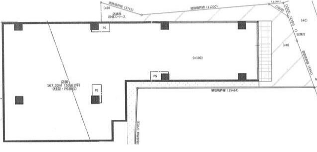
住所 東京都葛飾区亀有五丁目15-14 建物名/所在階 PrimroseKameari(プリムローズカメアリ)/1階 最寄駅 JR常磐線(上野~取手)亀有駅
徒歩2分近隣駅1 ー 近隣駅2 ー
費用/契約
-
造作価格 ー 賃料(坪単価) 1,210,000円(23,904円) 管理費/共益費(坪単価) ー(ー) 保証金/敷金 0ヶ月 / 3ヶ月 償却 ご相談 礼金 0ヶ月 更新料/再契約料 1ヶ月 その他費用 ー 仲介手数料 1ヶ月 その他手数料 ー 契約期間 10年 契約種別
用途
-
物件の現況 ー 可能用途 指定あり 坪数 50.62坪
- 備考






















