物件ID:189296
情報公開日:2026年01月28日
情報更新日:2026年04月24日
立地
-
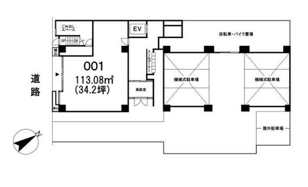
住所 神奈川県横浜市中区山下町210-3 建物名/所在階 パークアクシス横浜⼭下町 001区画/1階 最寄駅 JR根岸線関内駅
徒歩9分近隣駅1 ー 近隣駅2 ー
費用/契約
-
造作価格 ー 賃料(坪単価) 781,000円(22,831円) 管理費/共益費(坪単価) ー(ー) 保証金/敷金 ー / 6ヶ月 償却 ご相談 礼金 1ヶ月 更新料/再契約料 ご相談 その他費用 保証会社・火災保険加入要 鍵交換代16,500円 仲介手数料 1ヶ月 その他手数料 ー 契約期間 2年 契約種別
用途
-
物件の現況 ー 可能用途 指定あり 坪数 34.21坪
- 備考
- フレンチ入居中 口座振替事務手数料:220円/月
退去時通常清掃費用:211,459円/別途スケルトンへ原状回復義務
1フロア1テナント 解約予告6ヶ月前






















