物件ID:187744
情報公開日:2026年01月16日
情報更新日:2026年02月06日
立地
-
住所 東京都新宿区西新宿七丁目5 建物名/所在階 井上ビル12号館 301/3階 最寄駅 JR山手線新宿駅
徒歩13分近隣駅1 都営大江戸線新宿西口駅
徒歩6分近隣駅2 東京メトロ丸ノ内線西新宿駅
徒歩10分
費用/契約
-
造作価格 ー 賃料(坪単価) 438,900円(16,576円) 管理費/共益費(坪単価) 41,800円(1,578円) 保証金/敷金 2,633,400 / ー 償却 2ヶ月 礼金 0ヶ月 更新料/再契約料 ー その他費用 ー 仲介手数料 1ヶ月 その他手数料 ー 契約期間 2年 契約種別
用途
-
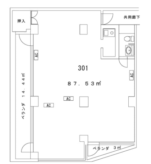
物件の現況 サービス(その他) 可能用途 指定あり 坪数 26.48坪
- 備考
- 電気、水道はビル全体で一括契約の為、管理会社より電気、水道代は請求



















