物件ID:187717
情報公開日:2026年01月15日
情報更新日:2026年01月15日
立地
-
住所 東京都中央区日本橋人形町二丁目9-5 建物名/所在階 NSビル/1階 最寄駅 東京メトロ日比谷線人形町駅
徒歩2分近隣駅1 都営浅草線人形町駅
徒歩2分近隣駅2 東京メトロ半蔵門線水天宮前駅
徒歩6分
費用/契約
-
造作価格 ー 賃料(坪単価) 450,450円(19,796円) 管理費/共益費(坪単価) 11,000円(483円) 保証金/敷金 8ヶ月 / ー 償却 ご相談 礼金 0ヶ月 更新料/再契約料 1ヶ月 その他費用 ー 仲介手数料 1ヶ月 その他手数料 ー 契約期間 2年 契約種別 普通賃貸借
用途
-
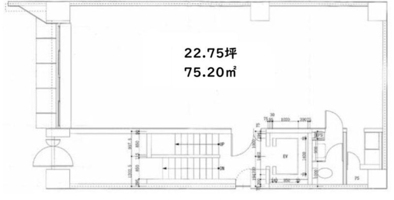
物件の現況 サービス(その他) 可能用途 指定あり 坪数 22.75坪
- 備考
- エントランス9:30~20:00
























