物件ID:125138
情報公開日:2025年04月17日
情報更新日:2025年11月05日
立地
-
住所 東京都中央区日本橋人形町二丁目6-7 建物名/所在階 SIL人形町/4階 最寄駅 東京メトロ日比谷線人形町駅
徒歩1分近隣駅1 東京メトロ半蔵門線水天宮前駅
徒歩4分近隣駅2 ー
費用/契約
-
造作価格 ー 賃料(坪単価) 572,000円(26,000円) 管理費/共益費(坪単価) ー(ー) 保証金/敷金 12ヶ月 / 0ヶ月 償却 1ヶ月 礼金 1ヶ月 更新料/再契約料 1ヶ月 その他費用 保証会社・火災保険加入要 仲介手数料 1ヶ月 その他手数料 ー 契約期間 2年 契約種別
用途
-
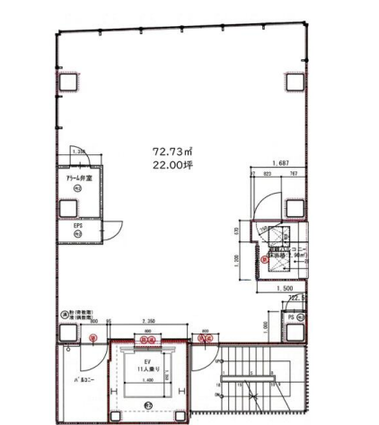
物件の現況 ー 可能用途 指定あり 坪数 22.00坪
- 備考
- 区画面積にアラーム弁室、EPS室を含む
ごみ処理費用別途あり 水光熱費実費
天井高2,700㎜ 機械警備 看板取付スペース有























