物件ID:186654
情報公開日:2026年01月07日
情報更新日:2026年01月18日
立地
-
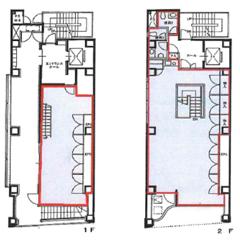
住所 東京都千代田区有楽町一丁目2-15 建物名/所在階 1~2階 最寄駅 東京メトロ千代田線日比谷駅
徒歩3分近隣駅1 東京メトロ日比谷線日比谷駅
徒歩3分近隣駅2 東京メトロ丸ノ内線銀座駅
徒歩5分
費用/契約
-
造作価格 ー 賃料(坪単価) 2,060,600円(60,485円) 管理費/共益費(坪単価) ー(ー) 保証金/敷金 10ヶ月 / 0ヶ月 償却 0% 礼金 0ヶ月 更新料/再契約料 0ヶ月 その他費用 保証会社・保険等加入要 仲介手数料 1ヶ月 その他手数料 ー 契約期間 5年 契約種別 普通賃貸借
用途
-
物件の現況 サービス(その他) 可能用途 指定あり 坪数 34.07坪
- 備考

























