物件ID:185484
情報公開日:2025年12月20日
情報更新日:2025年12月20日
立地
-
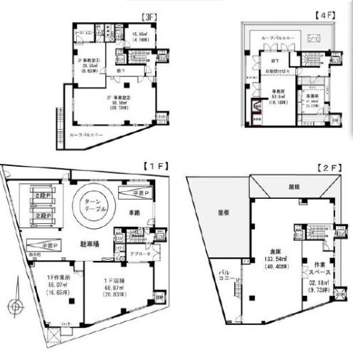
住所 東京都福生市大字福生二宮2167 建物名/所在階 福生ビル 1棟/1~4階 最寄駅 JR八高線(八王子~高麗川)東福生駅
徒歩4分近隣駅1 ー 近隣駅2 ー
費用/契約
-
造作価格 ー 賃料(坪単価) 880,000円(3,728円) 管理費/共益費(坪単価) ー(ー) 保証金/敷金 3ヶ月 / ー 償却 20% 礼金 1ヶ月 更新料/再契約料 ー その他費用 ー 仲介手数料 1ヶ月 その他手数料 ー 契約期間 3年 契約種別
用途
-
物件の現況 サービス(その他) 可能用途 指定あり 坪数 236.05坪
- 備考




















