物件ID:185304
情報公開日:2025年12月18日
情報更新日:2026年03月11日
立地
-
住所 東京都港区北青山三丁目6-20 建物名/所在階 KFIビル/1階 最寄駅 東京メトロ銀座線表参道駅
徒歩1分近隣駅1 東京メトロ半蔵門線表参道駅
徒歩1分近隣駅2 東京メトロ千代田線表参道駅
徒歩1分
費用/契約
-
造作価格 ー 賃料(坪単価) 4,586,175円(247,403円) 管理費/共益費(坪単価) ー(ー) 保証金/敷金 12ヶ月 / 0ヶ月 償却 20% 礼金 0ヶ月 更新料/再契約料 2ヶ月 その他費用 袖看板使用料 月額5500円 仲介手数料 1ヶ月 その他手数料 ー 契約期間 5年 契約種別 普通賃貸借
用途
-
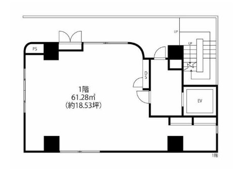
物件の現況 物販 可能用途 指定あり 坪数 18.54坪
- 備考
- 契約より3年間解約不可























