物件ID:184690
情報公開日:2025年12月13日
情報更新日:2025年12月13日
立地
-
住所 東京都板橋区成増二丁目18-15 建物名/所在階 須田ビル/1階 最寄駅 東京メトロ有楽町線地下鉄成増駅
徒歩1分近隣駅1 ー 近隣駅2 ー
費用/契約
-
造作価格 ー 賃料(坪単価) 330,000円(10,000円) 管理費/共益費(坪単価) 3,300円(100円) 保証金/敷金 6ヶ月 / 0ヶ月 償却 ご相談 礼金 0ヶ月 更新料/再契約料 1ヶ月 その他費用 保証会社・保険等加入要 仲介手数料 1ヶ月 その他手数料 ー 契約期間 3年 契約種別
用途
-
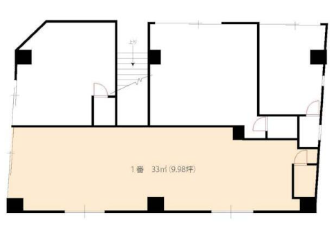
物件の現況 ダイニングバー 可能用途 指定あり 坪数 33.00坪
- 備考
- 専有部分にトイレあり

























