物件ID:180619
情報公開日:2025年11月12日
情報更新日:2026年01月14日
立地
-
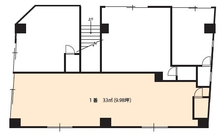
住所 東京都板橋区成増二丁目18-15 建物名/所在階 SUDA BUILDING/1階 最寄駅 東武東上線成増駅
徒歩1分近隣駅1 ー 近隣駅2 ー
費用/契約
-
造作価格 ー 賃料(坪単価) 330,000円(33,057円) 管理費/共益費(坪単価) 3,300円(330円) 保証金/敷金 6ヶ月 / ー 償却 2ヶ月 礼金 0ヶ月 更新料/再契約料 1ヶ月 その他費用 ・更新事務手数料 10,000円(別途消費税) 仲介手数料 1ヶ月 その他手数料 ー 契約期間 3年 契約種別
用途
-
物件の現況 居酒屋 可能用途 指定あり 坪数 9.98坪
- 備考
- 居抜き相談可
電気料金については、 毎月ご請求させていただきます。
1年未満の解約の場合、 賃料1ヶ月分




















