物件ID:184195
情報公開日:2025年12月10日
情報更新日:2025年12月10日
立地
-
住所 東京都新宿区四谷一丁目7 建物名/所在階 SOUBIビル/6階 最寄駅 JR中央線(快速)四ツ谷駅
徒歩2分近隣駅1 東京メトロ丸ノ内線四谷三丁目駅
徒歩10分近隣駅2 ー
費用/契約
-
造作価格 ー 賃料(坪単価) 220,000円(15,714円) 管理費/共益費(坪単価) ー(ー) 保証金/敷金 0ヶ月 / 5ヶ月 償却 2ヶ月 礼金 1ヶ月 更新料/再契約料 1ヶ月 その他費用 保証会社・火災保険等加入要 仲介手数料 1ヶ月 その他手数料 ー 契約期間 5年 契約種別 普通賃貸借
用途
-
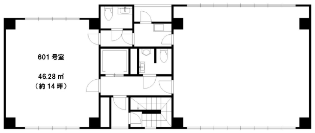
物件の現況 サービス(その他) 可能用途 指定あり 坪数 14.00坪
- 備考
- 共用部に給湯室・男女別トイレあり
オートロック(夜間・土日祝は施錠)
業種・営業時間等は応相談



























