物件ID:184091
情報公開日:2025年12月09日
情報更新日:2025年12月09日
立地
-
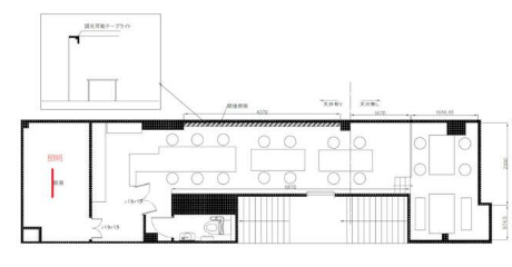
住所 東京都新宿区西新宿七丁目11-16 建物名/所在階 新宿プラスワンビル/2~3階 最寄駅 JR山手線新宿駅
徒歩10分近隣駅1 ー 近隣駅2 ー
費用/契約
-
造作価格 3,300,000万円 賃料(坪単価) 440,000円(30,570円) 管理費/共益費(坪単価) ー(ー) 保証金/敷金 10ヶ月 / 0ヶ月 償却 3ヶ月 礼金 2ヶ月 更新料/再契約料 ー その他費用 ー 仲介手数料 1ヶ月 その他手数料 ー 契約期間 6年 契約種別 普通賃貸借
用途
-
物件の現況 寿司・和食 可能用途 ご相談 坪数 14.39坪
- 備考
- 営業時間制限:24時迄
契約満了日:2032年1月31日/再契約料:1ヶ月



























