物件ID:129372
情報公開日:2024年08月04日
情報更新日:2025年09月30日
立地
-
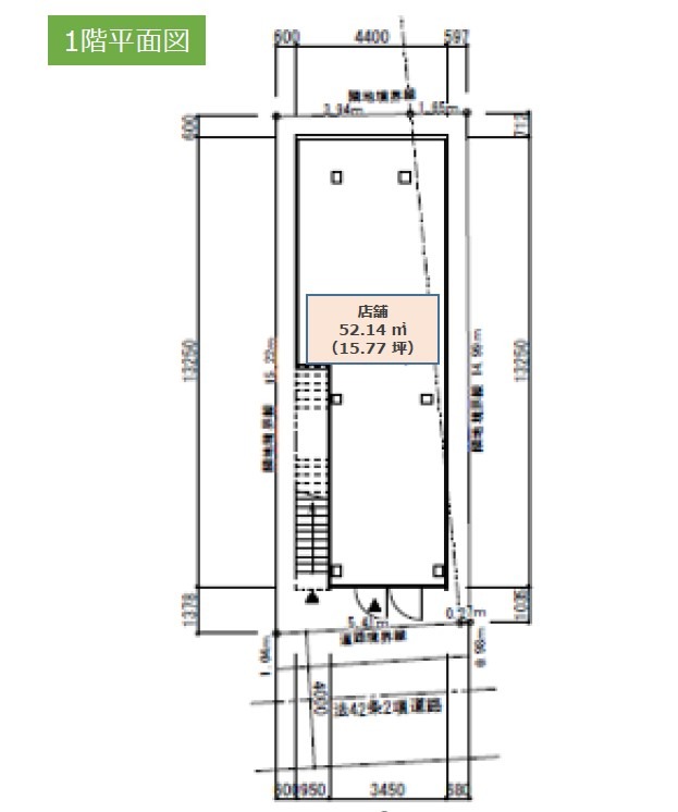
住所 東京都新宿区天神町22-1 建物名/所在階 1階 最寄駅 東京メトロ東西線神楽坂駅
徒歩3分近隣駅1 東京メトロ有楽町線江戸川橋駅
徒歩8分近隣駅2 ー
費用/契約
-
造作価格 ー 賃料(坪単価) ご相談(0円) 管理費/共益費(坪単価) ー(ー) 保証金/敷金 6ヶ月 / ー 償却 0% 礼金 1ヶ月 更新料/再契約料 ご相談 その他費用 ー 仲介手数料 1ヶ月 その他手数料 ー 契約期間 ー 契約種別 普通賃貸借
用途
-
物件の現況 ー 可能用途 指定あり 坪数 15.77坪
- 備考



















