物件ID:183141
情報公開日:2025年12月02日
情報更新日:2026年03月02日
立地
-
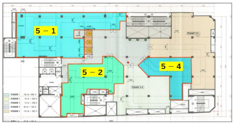
住所 千葉県習志野市津田沼一丁目2-1 建物名/所在階 十三ビル 5-4区画/5階 最寄駅 JR中央・総武線津田沼駅
徒歩2分近隣駅1 ー 近隣駅2 ー
費用/契約
-
造作価格 ー 賃料(坪単価) 1,044,560円(21,779円) 管理費/共益費(坪単価) 158,268円(3,630円) 保証金/敷金 ー / 10ヶ月 償却 ご相談 礼金 1ヶ月 更新料/再契約料 ー その他費用 保証契約必須 看板掲出料:月額88,000円 仲介手数料 1ヶ月 その他手数料 ー 契約期間 5年 契約種別 普通賃貸借
用途
-
物件の現況 ー 可能用途 指定あり 坪数 47.96坪
- 備考
- 転貸契約 飲食・サービス店舗可 耐震補強済み
防災設備及び躯体工事等B工事 昇降設備5基
階高3,600mm、スラブ下3,450mm 他区画同時募集



















