物件ID:182100
情報公開日:2025年12月13日
情報更新日:2025年12月13日
立地
-
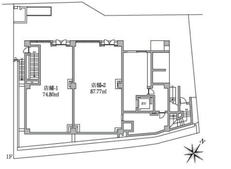
住所 東京都渋谷区神宮前五丁目42-14 建物名/所在階 ホウカイビル(地下1階店舗、1階店舗-1、1階店舗-2)/地下1~1階 最寄駅 東京メトロ銀座線表参道駅
徒歩7分近隣駅1 ー 近隣駅2 ー
費用/契約
-
造作価格 ー 賃料(坪単価) 3,884,710円(38,621円) 管理費/共益費(坪単価) ー(ー) 保証金/敷金 5ヶ月 / 0ヶ月 償却 15% 礼金 1ヶ月 更新料/再契約料 1ヶ月 その他費用 その他費用有 仲介手数料 1ヶ月 その他手数料 ー 契約期間 5年 契約種別 普通賃貸借
用途
-
物件の現況 ー 可能用途 ご相談 坪数 100.58坪
- 備考
- ※掲載情報は地下1~1階の合計となります。
※分割可!



















