物件ID:181269
情報公開日:2025年11月18日
情報更新日:2025年11月18日
立地
-
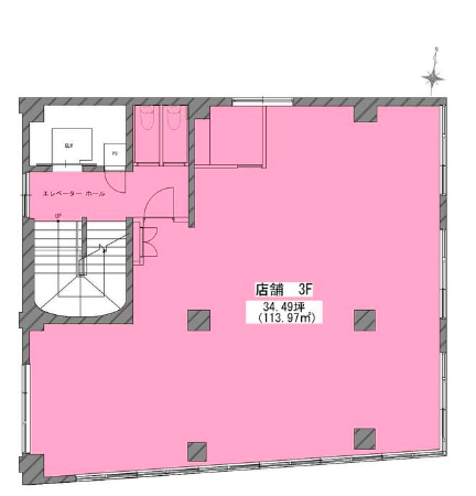
住所 東京都新宿区百人町一丁目5-1 建物名/所在階 エヌ・アゼリアビル 3F/地下3階 最寄駅 西武新宿線西武新宿駅
徒歩4分近隣駅1 ー 近隣駅2 ー
費用/契約
-
造作価格 ー 賃料(坪単価) 758,835円(22,010円) 管理費/共益費(坪単価) 113,817円(3,301円) 保証金/敷金 6ヶ月 / ー 償却 ご相談 礼金 1ヶ月 更新料/再契約料 ー その他費用 共用サイン5500円/月 仲介手数料 1ヶ月 その他手数料 ー 契約期間 3年 契約種別 普通賃貸借
用途
-
物件の現況 サービス(その他) 可能用途 指定あり 坪数 34.48坪
- 備考



















