物件ID:180504
情報公開日:2025年11月12日
情報更新日:2026年02月12日
立地
-
住所 神奈川県横浜市西区南幸二丁目18-3 建物名/所在階 ルーシッドスクエア横浜ウェスト 9F/9階 最寄駅 JR東海道本線(東京~熱海)横浜駅
徒歩6分近隣駅1 ー 近隣駅2 ー
費用/契約
-
造作価格 ー 賃料(坪単価) 1,831,500円(19,799円) 管理費/共益費(坪単価) ー(ー) 保証金/敷金 ー / 10ヶ月 償却 ご相談 礼金 0ヶ月 更新料/再契約料 ー その他費用 ー 仲介手数料 1ヶ月 その他手数料 ー 契約期間 2年 契約種別 普通賃貸借
用途
-
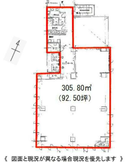
物件の現況 サービス(その他) 可能用途 指定あり 坪数 92.50坪
- 備考





















