物件ID:180241
情報公開日:2025年11月10日
情報更新日:2025年11月10日
立地
-
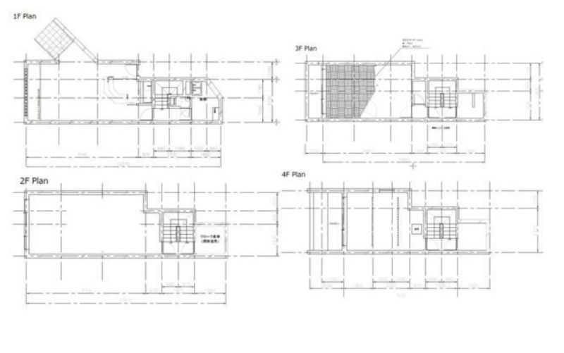
住所 東京都渋谷区代々木一丁目44-4 建物名/所在階 代々木一丁目1棟貸ビル/1~4階 最寄駅 JR山手線代々木駅
徒歩5分近隣駅1 ー 近隣駅2 ー
費用/契約
-
造作価格 ー 賃料(坪単価) ご相談(0円) 管理費/共益費(坪単価) ー(ー) 保証金/敷金 ー / 3ヶ月 償却 ご相談 礼金 1ヶ月 更新料/再契約料 ご相談 その他費用 共益費なし 仲介手数料 1ヶ月 その他手数料 ー 契約期間 3年 契約種別 普通賃貸借
用途
-
物件の現況 サービス(その他) 可能用途 指定あり 坪数 42.57坪
- 備考
- 専有部分にトイレあり,トイレ2ヶ所.収納スペース,
給湯,都市ガス,エアコン2台以上
飲食可
























