物件ID:175778
情報公開日:2025年10月03日
情報更新日:2025年11月05日
立地
-
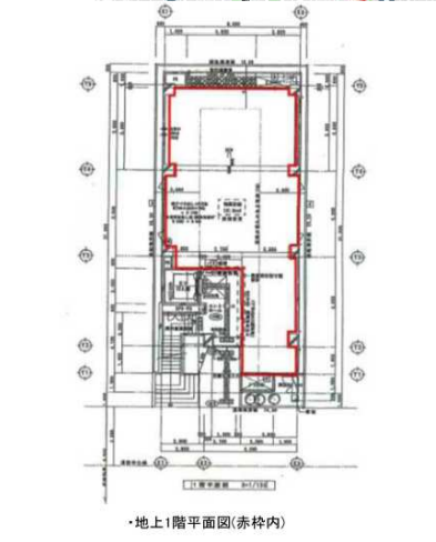
住所 東京都立川市柴崎町三丁目7-17 建物名/所在階 立川N2ビル/1階 最寄駅 JR中央線(快速)立川駅
徒歩3分近隣駅1 ー 近隣駅2 ー
費用/契約
-
造作価格 ー 賃料(坪単価) 1,367,850円(33,000円) 管理費/共益費(坪単価) ご相談(ご相談) 保証金/敷金 ご相談 / 0ヶ月 償却 ご相談 礼金 ご相談 更新料/再契約料 ー その他費用 保証会社・火災保険加入要 仲介手数料 1ヶ月 その他手数料 ー 契約期間 ー 契約種別
用途
-
物件の現況 ー 可能用途 指定あり 坪数 41.45坪
- 備考



















