物件ID:174885
情報公開日:2025年09月27日
情報更新日:2025年09月27日
立地
-
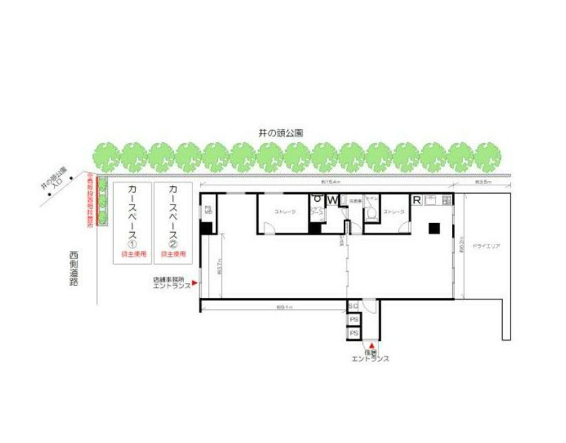
住所 東京都三鷹市井の頭四丁目18-15 建物名/所在階 J.K.井の頭/1階 最寄駅 JR中央本線(東京~塩尻)吉祥寺駅
徒歩9分近隣駅1 ー 近隣駅2 ー
費用/契約
-
造作価格 ー 賃料(坪単価) 550,000円(17,750円) 管理費/共益費(坪単価) 10,000円(322円) 保証金/敷金 0ヶ月 / 4ヶ月 償却 1ヶ月 礼金 1ヶ月 更新料/再契約料 ー その他費用 ー 仲介手数料 1ヶ月 その他手数料 ー 契約期間 3年 契約種別
用途
-
物件の現況 サービス(その他) 可能用途 指定あり 坪数 30.99坪
- 備考




















