物件ID:175414
情報公開日:2025年10月01日
情報更新日:2026年01月13日
立地
-
住所 東京都新宿区新宿三丁目1-20 建物名/所在階 メットライフ新宿スクエア/8階 最寄駅 東京メトロ丸ノ内線新宿三丁目駅
徒歩1分近隣駅1 JR山手線新宿駅
徒歩5分近隣駅2 JR中央・総武線新宿駅
徒歩5分
費用/契約
-
造作価格 ー 賃料(坪単価) 5,324,550円(33,000円) 管理費/共益費(坪単価) ー(ー) 保証金/敷金 12ヶ月 / 0ヶ月 償却 0% 礼金 0ヶ月 更新料/再契約料 ー その他費用 ー 仲介手数料 1ヶ月 その他手数料 ー 契約期間 ー 契約種別
用途
-
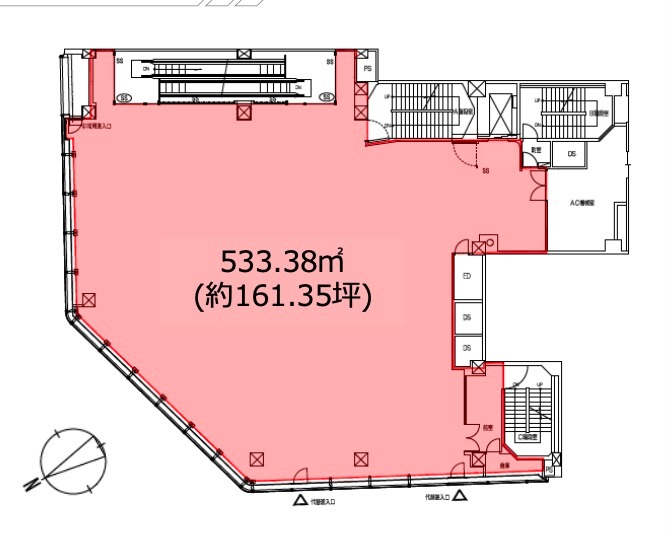
物件の現況 ー 可能用途 指定あり 坪数 161.35坪
- 備考






















