物件ID:174376
情報公開日:2025年09月23日
情報更新日:2025年12月16日
立地
-
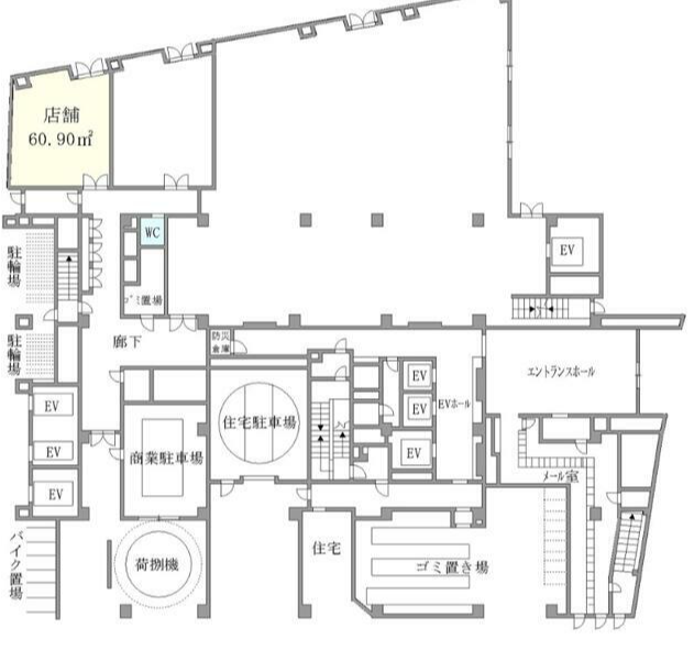
住所 東京都板橋区大山町28-8 建物名/所在階 シティタワーズ板橋大山サウスタワー A105/1階 最寄駅 東武東上線大山駅
徒歩3分近隣駅1 都営三田線板橋区役所前駅
徒歩12分近隣駅2 ー
費用/契約
-
造作価格 ー 賃料(坪単価) 770,000円(41,797円) 管理費/共益費(坪単価) ご相談(ご相談) 保証金/敷金 ご相談 / 10ヶ月 償却 1ヶ月 礼金 1ヶ月 更新料/再契約料 1ヶ月 その他費用 ー 仲介手数料 1ヶ月 その他手数料 ー 契約期間 2年 契約種別
用途
-
物件の現況 ー 可能用途 指定あり 坪数 18.42坪
- 備考
- 業態につきましてはお気軽にスタッフまでお申し付けくださいませ。
大山駅まですぐの好立地テナントです。




















