物件ID:173237
情報公開日:2025年09月12日
情報更新日:2026年03月05日
立地
-
住所 東京都中央区八丁堀二丁目21-2 建物名/所在階 コア京橋 8F/8階 最寄駅 東京メトロ日比谷線八丁堀駅
徒歩1分近隣駅1 都営浅草線宝町駅
徒歩8分近隣駅2 東京メトロ日比谷線茅場町駅
徒歩5分
費用/契約
-
造作価格 ー 賃料(坪単価) 822,492円(17,050円) 管理費/共益費(坪単価) 185,724円(3,850円) 保証金/敷金 ー / 10ヶ月 償却 1ヶ月 礼金 0ヶ月 更新料/再契約料 ー その他費用 ー 仲介手数料 1ヶ月 その他手数料 ー 契約期間 2年 契約種別
用途
-
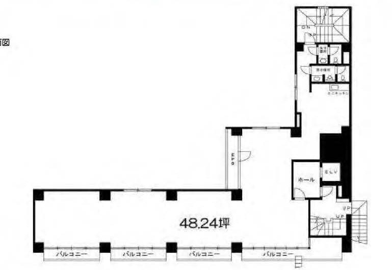
物件の現況 サービス(その他) 可能用途 指定あり 坪数 48.24坪
- 備考



















