物件ID:166777
情報公開日:2025年07月17日
情報更新日:2026年01月15日
立地
-
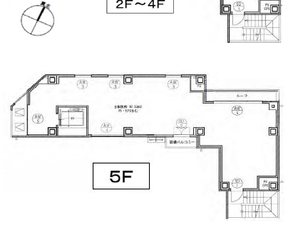
住所 東京都千代田区神田神保町一丁目34 建物名/所在階 Enetiol神保町 5F/5階 最寄駅 東京メトロ半蔵門線神保町駅
徒歩3分近隣駅1 都営新宿線神保町駅
徒歩3分近隣駅2 都営三田線神保町駅
徒歩3分
費用/契約
-
造作価格 ー 賃料(坪単価) 589,500円(21,106円) 管理費/共益費(坪単価) ー(ー) 保証金/敷金 ー / 6ヶ月 償却 0% 礼金 1ヶ月 更新料/再契約料 ー その他費用 ー 仲介手数料 1ヶ月 その他手数料 ー 契約期間 2年 契約種別
用途
-
物件の現況 サービス(その他) 可能用途 指定あり 坪数 27.93坪
- 備考



















