物件ID:165783
情報公開日:2026年03月12日
情報更新日:2026年03月12日
立地
-
住所 東京都港区虎ノ門一丁目1-20 建物名/所在階 虎ノ門実業会館2 F/2階 最寄駅 東京メトロ銀座線虎ノ門駅
徒歩1分近隣駅1 東京メトロ日比谷線虎ノ門ヒルズ駅
徒歩3分近隣駅2 東京メトロ丸ノ内線霞ケ関駅
徒歩4分
費用/契約
-
造作価格 ー 賃料(坪単価) 2,215,180円(22,000円) 管理費/共益費(坪単価) 659,016円(6,544円) 保証金/敷金 12ヶ月 / 0ヶ月 償却 0% 礼金 0ヶ月 更新料/再契約料 ご相談 その他費用 賃料は目安となります。店舗の場合には敷金が15ヶとなります。 仲介手数料 1ヶ月 その他手数料 ー 契約期間 2年 契約種別 普通賃貸借
用途
-
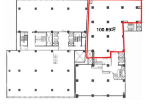
物件の現況 サービス(その他) 可能用途 指定あり 坪数 100.69坪
- 備考



















