物件ID:163252
情報公開日:2025年06月18日
情報更新日:2026年03月05日
立地
-
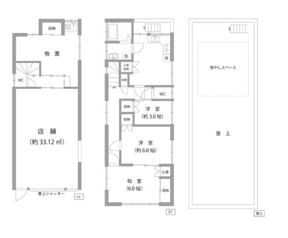
住所 東京都大田区南雪谷二丁目3-8 建物名/所在階 南雪谷2丁目店舗 一棟/1~2階 最寄駅 東急池上線雪が谷大塚駅
徒歩1分近隣駅1 ー 近隣駅2 ー
費用/契約
-
造作価格 ー 賃料(坪単価) 550,000円(16,889円) 管理費/共益費(坪単価) ー(ー) 保証金/敷金 ー / 6ヶ月 償却 2ヶ月 礼金 2ヶ月 更新料/再契約料 1ヶ月 その他費用 更新事務手数料11000円税込 仲介手数料 1ヶ月 その他手数料 ー 契約期間 3年 契約種別
用途
-
物件の現況 サービス(その他) 可能用途 指定あり 坪数 32.56坪
- 備考



















