物件ID:161430
情報公開日:2025年06月04日
情報更新日:2025年11月27日
立地
-
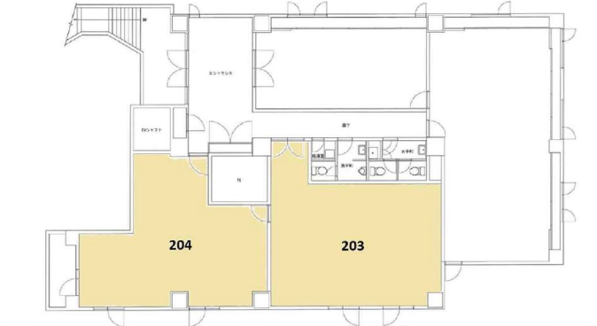
住所 東京都港区白金台三丁目15-1 建物名/所在階 白金台シティハウス 203/2階 最寄駅 都営三田線白金台駅
徒歩2分近隣駅1 ー 近隣駅2 ー
費用/契約
-
造作価格 ー 賃料(坪単価) 388,080円(22,000円) 管理費/共益費(坪単価) ー(ー) 保証金/敷金 ー / 4ヶ月 償却 ご相談 礼金 1ヶ月 更新料/再契約料 ー その他費用 ー 仲介手数料 1ヶ月 その他手数料 ー 契約期間 2年 契約種別
用途
-
物件の現況 サービス(その他) 可能用途 指定あり 坪数 17.64坪
- 備考



















