物件ID:158558
情報公開日:2026年02月05日
情報更新日:2026年02月05日
立地
-
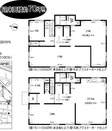
住所 神奈川県川崎市多摩区登戸2636-4 建物名/所在階 登戸新築貸店舗 一棟/1~2階 最寄駅 JR南武線登戸駅
徒歩3分近隣駅1 小田急線登戸駅
徒歩3分近隣駅2 小田急線向ヶ丘遊園駅
徒歩3分
費用/契約
-
造作価格 ー 賃料(坪単価) 880,000円(12,636円) 管理費/共益費(坪単価) ー(ー) 保証金/敷金 3ヶ月 / ー 償却 20% 礼金 1ヶ月 更新料/再契約料 ー その他費用 ー 仲介手数料 1ヶ月 その他手数料 ー 契約期間 10年 契約種別
用途
-
物件の現況 サービス(その他) 可能用途 指定あり 坪数 69.64坪
- 備考





















