物件ID:140746
情報公開日:2024年11月27日
情報更新日:2026年04月08日
立地
-
住所 東京都中央区銀座一丁目28-16 建物名/所在階 SUGIURA GINZA/8階 最寄駅 東京メトロ有楽町線新富町駅
徒歩2分近隣駅1 ー 近隣駅2 ー
費用/契約
-
造作価格 ー 賃料(坪単価) 1,879,680円(32,997円) 管理費/共益費(坪単価) ー(ー) 保証金/敷金 10ヶ月 / ー 償却 1ヶ月 礼金 1ヶ月 更新料/再契約料 1ヶ月 その他費用 保証会社・火災保険加入要 内装マネジメント費あり 仲介手数料 1ヶ月 その他手数料 ー 契約期間 3年 契約種別
用途
-
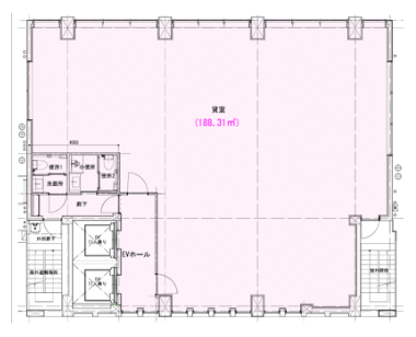
物件の現況 ー 可能用途 指定あり 坪数 56.96坪
- 備考
- 天井仕上げ想定2,700mm、天井表し3,650mm
風営法業種不可 EV2基 新耐震基準 土日祝利用可
共用部にフルオートトイレ有り 飲食店用ダクトあり 解約予告6ヶ月前




















