物件ID:138616
情報公開日:2025年10月17日
情報更新日:2026年04月01日
立地
-
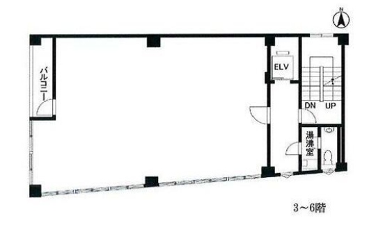
住所 東京都港区芝五丁目25-9 建物名/所在階 三⽥スクエアビル/6階 最寄駅 都営三田線三田駅
徒歩2分近隣駅1 都営浅草線三田駅
徒歩2分近隣駅2 JR山手線田町駅
徒歩4分
費用/契約
-
造作価格 ー 賃料(坪単価) 572,000円(15,604円) 管理費/共益費(坪単価) 48,400円(1,320円) 保証金/敷金 6ヶ月 / ー 償却 ご相談 礼金 0ヶ月 更新料/再契約料 1ヶ月 その他費用 ー 仲介手数料 1ヶ月 その他手数料 ー 契約期間 5年 契約種別
用途
-
物件の現況 サービス(その他) 可能用途 指定あり 坪数 36.66坪
- 備考



























