物件ID:69528
情報公開日:2025年05月22日
情報更新日:2026年01月17日
立地
-
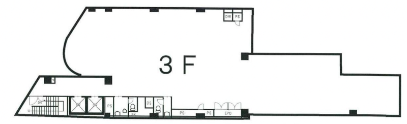
住所 東京都荒川区東日暮里五丁目51-12 建物名/所在階 日暮里安永ビル/3階 最寄駅 JR山手線日暮里駅
徒歩2分近隣駅1 JR京浜東北線日暮里駅
徒歩2分近隣駅2 京成本線日暮里駅
徒歩2分
費用/契約
-
造作価格 ー 賃料(坪単価) 1,924,670円(15,729円) 管理費/共益費(坪単価) 538,384円(4,399円) 保証金/敷金 2,000,000 / 0ヶ月 償却 38% 礼金 2ヶ月 更新料/再契約料 1ヶ月 その他費用 看板使用料 月40,000円(別) 仲介手数料 1ヶ月 その他手数料 ー 契約期間 2年 契約種別
用途
-
物件の現況 物販 可能用途 何業も可 坪数 122.36坪
- 備考






















